Guided Custom Build; Your Vision, Our Expertise
Our guided custom builds are tailored for businesses seeking a truly unique office environment with the convenience of expert guidance every step of the way. This concept is designed for businesses seeking a personalized office environment with the assurance of professional support. From initial concept to final execution, our team of experienced designers, architects, and construction specialists work closely with you, ensuring your vision is realized with precision and ease. With Guided Custom Builds, you'll experience the creativity of a custom-tailored space, coupled with the peace of mind that comes from expert hand-holding.
Features of a Guided Custom Build
- flex_wrapAI Powered Space Planning Tools & Expert Guidance Every Step of the Way
- deskCustomer Solutions Including Access to Temporary Space to Support Transition
- device_hubAbility To Design a Space That Meets Your Unique Needs Without The Hassle Of Managing The Complex Process
- handshakeReliable and Trusted Workplace Partner
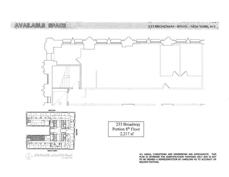
Space Details
8th Floor Portion, Suite 860
Location
Transit
LIVE TRANSIT MAPThe Woolworth Building Details
- Landmark Iconic Building
- 24-Hour Access
- Security
- Classic Arched Lobby
- Property Manager On-Site
- Close Proximity to all Major Transit
- 12' Ceiling Height Typical
- 18 Modernized Computer-Controlled Passenger Elevators
- 2 Freight Cars
- Tenant Controlled Chilled Water System
How It Works
Start by meeting with our dedicated workplace advisors and leasing team. Together, we'll explore our diverse portfolio to find the perfect location that aligns with your needs.
Collaborate with our experienced architects to discuss your office layout. Whether you envision an open-plan workspace or private suites, we'll tailor the design to your specifications.
Our design and construction team will work closely with you to refine the finishes of your space. From choosing the perfect materials to ensuring every detail is just right, we've got you covered.
We'll connect you with trusted vendors and we will manage every step of the way, including furniture specialists, IT and infrastructure experts, AV professionals, and specialty lighting providers. This ensures that every aspect of your workspace is carefully considered and executed.
As your custom build nears completion, we'll conduct a final walkthrough to ensure every element meets your expectations. Once you're satisfied, it's time to move in and start working in your brand-new, tailor-made space.
Book A Tour
We’d love to discuss your leasing needs. Fill out the form below and one of team members will be in touch.
Meet Our Clients
Experience
Downtown NYC
Steps From Your New Office
Contact
We’d love to discuss your business leasing needs. Fill out the form below and one of team members will be in touch to answer any questions and schedule a tour.
Call Us
212-363-3939






























